Unique: House right by the sea! Fantastic bay on the doorstep
This wonderful, semi-traditional house on the island of Korčula is located in a small bay, hidden from the hustle and...
1.600.000€
Split
22202 Primosten, Croatia
For sale
1.600.000€




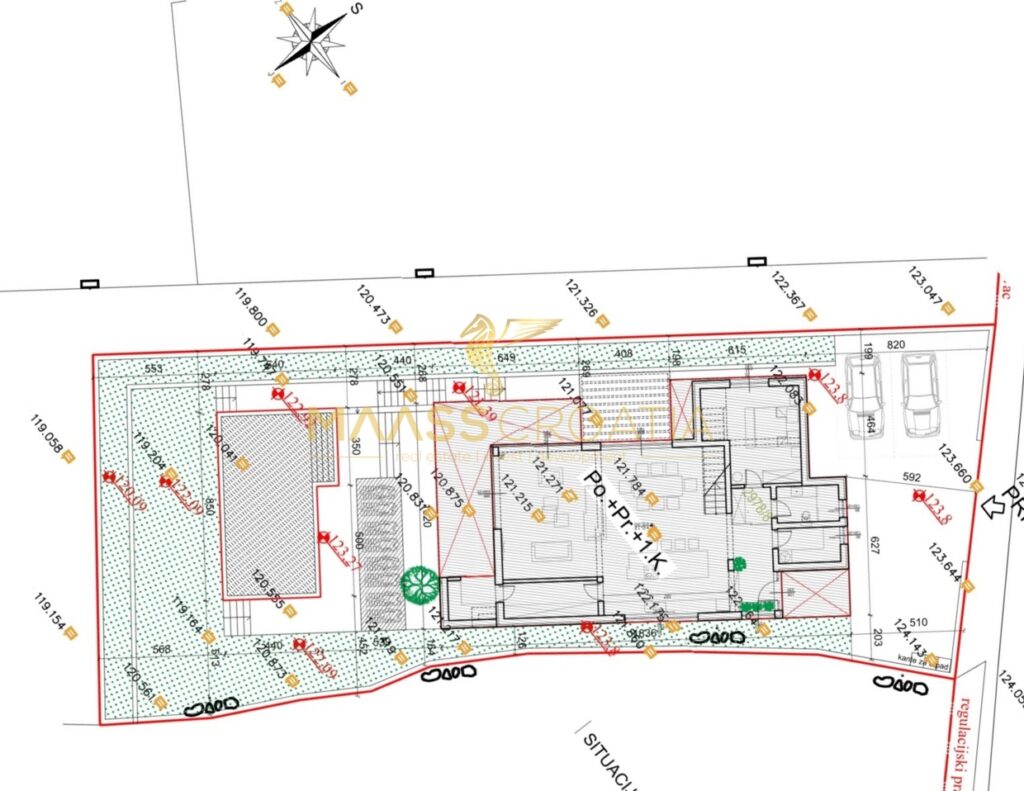
The villa offers a spectacular panoramic view of the sea and Primošten.
It is currently still under construction and is surrounded by nature, far away from the hustle and bustle of the city.
Situated on a 600 sqm plot, the villa was designed with modern architecture, clean lines, spacious terraces and carefully selected materials.
With its three-storey structure, the villa has a living area of 225.21 m² and offers plenty of space for comfortable living.
The basement offers a spacious storage room and a room for the pool equipment, while the first floor and second floor are reserved for everyday life and relaxation.
The spacious outdoor area includes ample parking for several vehicles and a 40 m2 swimming pool surrounded by a sunbathing area, creating an ideal place to relax and socialize outdoors.
The spacious interior of the villa comprises the main entrance area, hallway, laundry room, dining room, living room, kitchen with access to the terrace with summer kitchen and bedroom with en-suite bathroom.
On the second floor there are three spacious bedrooms, each with its own bathroom and dressing room.
Although the villa is located in a quiet area, it is only 1900 meters from the beach and 2400 meters from the city center.
The planned move-in date is set for summer 2025.
Primosten is a beautiful, small and charming town located between Rogoznica and Sibenik.





This wonderful, semi-traditional house on the island of Korčula is located in a small bay, hidden from the hustle and...
1.600.000€





Vodice, hilltop villas with spectacular panoramic views of the sea and the Vodice archipelago. Designed in a modern...
1.365.000€
550 m from the beach: Three detached houses with garden
Owning a home is a keystone of wealth… both financial affluence and emotional security.
Suze Orman